公開日:2020/08/30(日)
みなさんこんにちは
本日はここに注意! IKEAキッチンリフォーム
と題しまして、IKEAキッチンリフォームの注意点を
お話させて頂きます

前回は施工場所と騒音について、
お話させて頂きました
詳しくは下記のブログをご覧ください
ここに注意! IKEAキッチンリフォーム〜施工場所と騒音〜
これまでのブログをご覧いただければわかる通り、
ほんとうに施工が大変なのがIKEAキッチンの特長です
「だから大工さんにお願いしてるんでしょ
」
と思ったそこのあなた、要注意です

カンタンな組立説明書と
図面のみで作業を進めていくので、
図面や説明書と現場で相違点があった時に、
どのように納めるのか
万が一、足りない部材があったときは
どのように対処するのか
自分が現場監督になるんだ

くらいの覚悟をもって、施工に挑んで下さいね

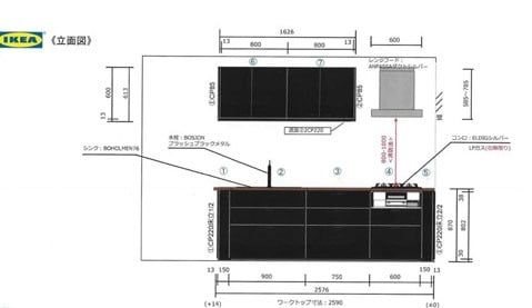
こちらが組立説明書です。

こちらが図面です。
とにかく全ての作業に時間がかかる
IKEAキッチンリフォーム。
落ち着いて施工を終える為に、
時間に余裕をもって計画されることをお勧めします

特に時間がかかることをまとめましたのでご参考に

プランニングに時間がかかる
カウンター・水栓・レンジフード
コンロ・扉カラー・取っ手など、、
色々と選ばないといけない為、
プランニングに1時間半以上はかかります
時間に余裕のある日に予約を取ることをお勧めします!
その点、日本メーカーのキッチンは
商品によってある程度基本プランが組まれているので
選びやすい

計画に時間がかかる
いざ商品が決まっても、
どこに施工を頼むのか
どこに納品物を保管しておくのか
施工スペースの確保はどうするのか
施工期間中の食事や洗い物はどうするのか
車の移動は必要なのか
誰が施工に立ち会うのか
考えないといけないことがたくさんあります

施工に時間がかかる
全部のパーツを1から作り上げていくので
とにかく時間がかかります
大工さん2人がかりでも約2日かかりました
先ほどお伝えした通り、
施工を任せっきりにできないので、
たった2日といっても
結構しんどいんですよね
日本メーカーのキッチンは
メーカー専属の職人さんが施工してくれますので、
楽ちんで安心なんです



各メーカー商品多数掲載中

お見積りやご相談は無料で行っております

お電話でも受付中♪

本日はここに注意! IKEAキッチンリフォーム
と題しまして、IKEAキッチンリフォームの注意点を
お話させて頂きます

前回は施工場所と騒音について、
お話させて頂きました
詳しくは下記のブログをご覧ください
ここに注意! IKEAキッチンリフォーム〜施工場所と騒音〜
■注意点?
施工
これまでのブログをご覧いただければわかる通り、
ほんとうに施工が大変なのがIKEAキッチンの特長です
「だから大工さんにお願いしてるんでしょ
と思ったそこのあなた、要注意です
カンタンな組立説明書と
図面のみで作業を進めていくので、
どのように納めるのか
どのように対処するのか
自分が現場監督になるんだ
くらいの覚悟をもって、施工に挑んで下さいね


■注意点?
時間
とにかく全ての作業に時間がかかる
IKEAキッチンリフォーム。
落ち着いて施工を終える為に、
時間に余裕をもって計画されることをお勧めします
特に時間がかかることをまとめましたのでご参考に

カウンター・水栓・レンジフード
コンロ・扉カラー・取っ手など、、
色々と選ばないといけない為、
プランニングに1時間半以上はかかります
時間に余裕のある日に予約を取ることをお勧めします!
その点、日本メーカーのキッチンは
商品によってある程度基本プランが組まれているので
選びやすい

いざ商品が決まっても、
考えないといけないことがたくさんあります

全部のパーツを1から作り上げていくので
とにかく時間がかかります
大工さん2人がかりでも約2日かかりました
先ほどお伝えした通り、
施工を任せっきりにできないので、
たった2日といっても
結構しんどいんですよね
日本メーカーのキッチンは
メーカー専属の職人さんが施工してくれますので、
楽ちんで安心なんです

■IKEAキッチンリフォームの注意点

各メーカー商品多数掲載中

お見積りやご相談は無料で行っております

お電話でも受付中♪

