お気に入り
メニュー
0120-482-488
10:00~18:00 水・木 定休日
お問い合せ
単価一覧
お気に入り
ファミリー庭園とは
施工例
プラン事例
お客様の声
店舗一覧
工事の流れ
プラン詳細
プラン内容
No.910
※データは見積当時のものです
見積参考価格
250
万円
工事面積
232m
2
工事種別
新築外構
地形
角地
登録日
2011-06-25
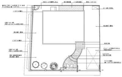
イメージパース・図面
1/6
2/6
3/6
4/6
施工前
5/6
平面図 表札施主支給
6/6
工種別 参考価格
このプランの分類
ナチュラル
クローズ
このプランについて問い合わせる