お気に入り
メニュー
0120-482-488
10:00~18:00 水・木 定休日
お問い合せ
単価一覧
お気に入り
ファミリー庭園とは
施工例
プラン事例
お客様の声
店舗一覧
工事の流れ
プラン詳細
プラン内容
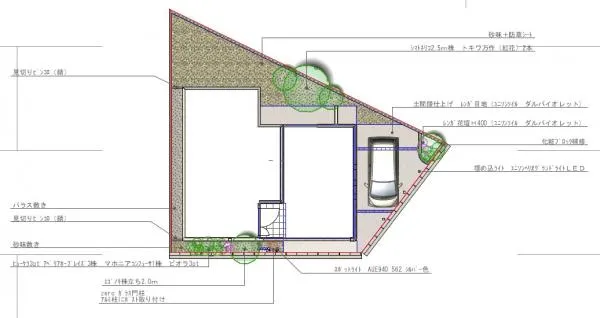
No.873
※データは見積当時のものです
見積参考価格
95
万円
工事面積
99m
2
工事種別
新築外構
地形
角地
車の台数
2台
登録日
2011-04-29
イメージパース・図面
1/5
2/5
3/5
4/5
平面図
5/5
工種別 参考価格
このプランの分類
シンプル
オープン
このプランについて問い合わせる