タイルを使った門柱とアプローチが統一感のある新築シンプル オープン外構
プラン内容 No.3356
※データは見積当時のものです
- 見積参考価格
- 365 万円
- 工事面積
- 120m 2
- 工事種別
- 新築外構
- 地形
- 四角
- 方位
- 北西
- 車の台数
- 3台以上
- 登録日
- 2025-09-23
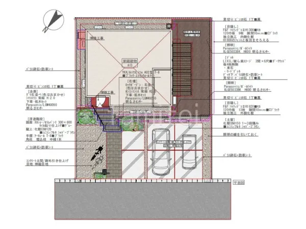
イメージパース・図面







コメント
大判タイル タカショー セラレバンテを使用したタイル門柱とアプローチが統一感がありつつ、上質で高級感のある印象をプラスします。 玄関階段は浮遊階加工を施し、手すり LIXIL アーキレールを組み合わせることで、モダンかつ安心感のある玄関まわりに。 お庭には温かみのあるウッドデッキ LIXIL 樹ら楽ステージを設置し、目隠しフェンス F&F マイティウッド デコllを配置することで、プライバシーを確保しながらゆっくりとくつろげる空間を作りました。







