大きなタイル門柱と浮遊階段が存在感のある新築シンプル オープン外構
プラン内容 No.3314
※データは見積当時のものです
- 見積参考価格
- 690 万円
- 工事面積
- 146m 2
- 工事種別
- 新築外構
- 地形
- 四角
- 方位
- 北
- 車の台数
- 3台以上
- 登録日
- 2025-08-23
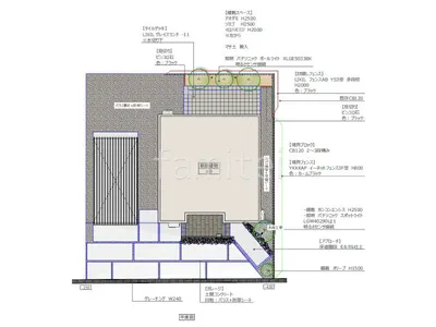
イメージパース・図面







コメント
大判タイル タカショー セラレバンテを使用した大きな門柱を設け、存在感と高級感を両立しました。 玄関までの階段は浮遊階段加工を施し、洗練されたデザインに仕上げました。 駐車スペースにはシャッターガレージ ヨドコウ 木調のラヴィージュを設置することで、防犯性を高めつつ木目の温かみをプラスしました。 お庭にはタイルデッキをと多段目隠しフェンス LIXIL AB YS3型を組み合わせ、プライバシーを確保しながらゆっくりとくつろげる空間を作りました。







