駐車場の車止めが安全な新築ベーシック セミクローズ外構
プラン内容 No.3310
※データは見積当時のものです
- 見積参考価格
- 265 万円
- 工事面積
- 143m 2
- 工事種別
- 新築外構
- 地形
- 角地
- 方位
- 南
- 車の台数
- 3台以上
- 登録日
- 2025-08-31
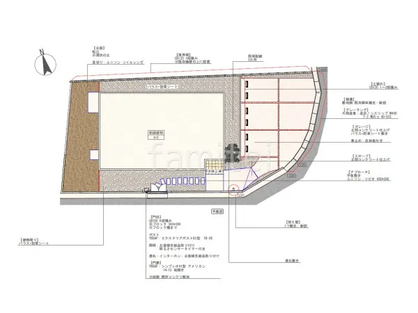
イメージパース・図面






コメント
駐車スペースには車止めを設置し、安全性と使い勝手を高めました。 アプローチには平板 ユニソン リビオを使用し、飛び石風デザインが魅力的です。 門まわりには両開き門扉 YKKAP シンプレオA1型 アメリカンを配置し、ナチュラルな印象でエントランスを華やかに仕上げました。






