塗り壁門柱と乱形石が温かみのある雰囲気の新築ナチュラル セミクローズ外構
プラン内容 No.3287
※データは見積当時のものです
- 見積参考価格
- 480 万円
- 工事面積
- 144m 2
- 工事種別
- 新築外構
- 地形
- 角地
- 方位
- 南西
- 車の台数
- 2台
- 登録日
- 2022-01-24
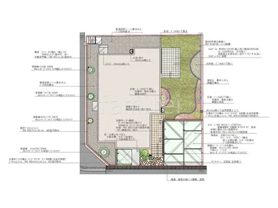
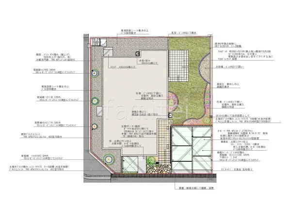
イメージパース・図面










コメント
2台用カーポートとサイクルポート YKKAP エフルージュFIRSTを採用することで、車や自転車を保護する駐輪・駐車スペースを確保しました。 アプローチには黄色の乱形石を敷き、明るく華やかな雰囲気に仕上げました。 玄関まわりには塗り壁仕上げの門柱と門塀を設置し、上質な印象を演出。 お庭には天然芝を敷き、タイルデッキを組み合わせることで、自然を楽しみながら家族とくつろげる快適な空間に。 また、目隠しフェンス YKKAP 木製調ルシアス フェンスH06R型を設け、温もりのある質感でプライバシーを守ります。










