宅配ボックス付き機能門柱が安心感のある新築ベーシック セミクローズ外構
プラン内容 No.3282
※データは見積当時のものです
- 見積参考価格
- 222 万円
- 工事面積
- 60m 2
- 工事種別
- 新築外構
- 地形
- 四角
- 方位
- 東
- 車の台数
- 1台
- 登録日
- 2022-01-28
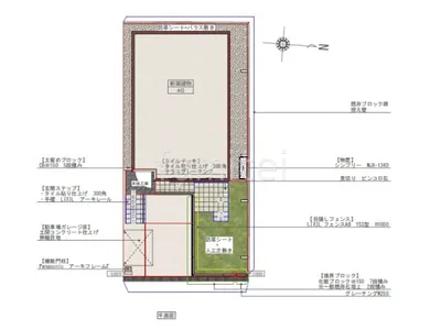
イメージパース・図面







コメント
門まわりに宅配ボックス付き機能門柱 Panasonic アーキフレームFを採用し、スタイリッシュさと利便性を兼ね備えました。 また、自転車置き場にはサイクルポート LIXIL ネスカFミニを設置し、雨の日でも安心して自転車を保管できます。 玄関階段には手すり LIXIL アーキレールの手すりを設け、安全性を向上しました。 お庭には人工芝とタイルデッキを組み合わせ、周囲には目隠しフェンス LIXIL 木製調AB YS3型を設けることで、プライバシー性を確保しながらゆっくりとくつろぐ快適なスペースを作りました。







