奥行きのある駐車スペースを活かした新築シンプル セミクローズ外構
プラン内容 No.3250
※データは見積当時のものです
- 見積参考価格
- 615 万円
- 工事面積
- 138m 2
- 工事種別
- 新築外構
- 地形
- 四角
- 方位
- 北
- 車の台数
- 3台以上
- 登録日
- 2022-02-24
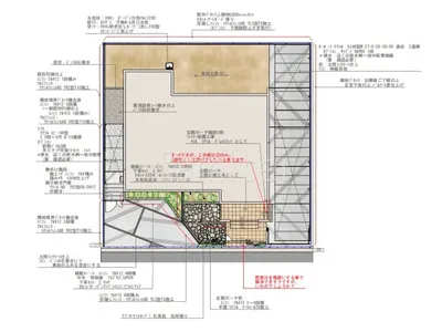
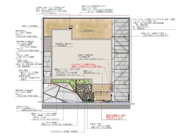
イメージパース・図面







コメント
乱形石貼りのスロープを設け、自然石ならではの豊かな表情が上質な印象を与えます。 門まわりには目隠しフェンス LIXIL AB YL3型を設置することで、しっかりとプライバシーを確保します。 出入り口には引き戸門扉 三協アルミ レナードM5型を配置し、スムーズな開閉とスタイリッシュなデザインを両立しています。 建物横に1階用テラス屋根 LIXIL スピーネRを設置し、前面パネルを取り付けることで雨風を防ぎつつ快適に使える屋外空間に仕上げました。 さらに、3連棟カーポート LIXIL ネスカRを新設し、奥行きのある広々とした駐車空間を作りました。







