化粧ブロック門柱が重厚感のある外構リフォーム工事
プラン内容 No.3236
※データは見積当時のものです
- 見積参考価格
- 200 万円
- 工事面積
- 183m 2
- 工事種別
- リフォーム外構
- 地形
- 四角
- 方位
- 西
- 車の台数
- 3台以上
- 登録日
- 2025-07-05
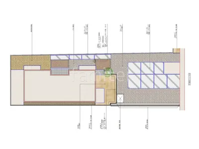
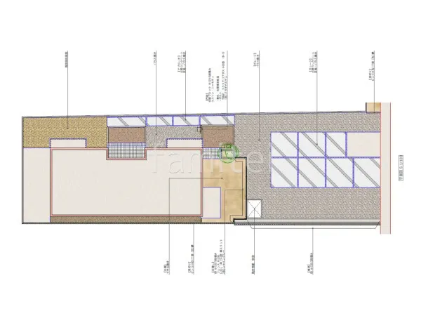
イメージパース・図面






コメント
お庭の周囲には目隠しフェンス LIXIL AB YS3型を設置し、外部からの視線をしっかり遮ることでプライバシーを確保します。 門まわりには化粧ブロック ユニソン シャモティを使用した門柱を採用し、重厚感と温かみを兼ね備えたデザインに仕上げました。 さらに、アプローチと駐車スペースには耐久性に優れた土間コンクリートを施工し、すっきりとした印象で使い勝手を向上しました。






