目隠しフェンスとシャッターガレージで防犯性の高い新築ナチュラル セミクローズ外構
プラン内容 No.3216
※データは見積当時のものです
- 見積参考価格
- 561 万円
- 工事面積
- 193m 2
- 工事種別
- 新築外構
- 地形
- 四角
- 方位
- 南西
- 車の台数
- 3台以上
- 登録日
- 2025-07-20
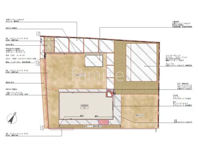
イメージパース・図面






コメント
大判タイル タカショー セラウォールを使用したタイル門柱を採用し、重厚感と高級感のある門まわりに仕上げました。 お庭スペースの周囲には目隠しフェンス F&F マイティウッドデコllを設置し、外部からの視線をしっかり遮りながら、木調の温かみをプラスします。 さらに、駐車スペースにはシャッターガレージ イナバ物置 ラヴィージュ3を新設し、車を雨風や防犯面から守る安心の空間を確保しました。






