シャッターゲートと門扉で防犯性の高い新築ハイクラス クローズ外構
プラン内容 No.3174
※データは見積当時のものです
- 見積参考価格
- 903 万円
- 工事面積
- 178m 2
- 工事種別
- 新築外構
- 地形
- 四角
- 方位
- 南
- 車の台数
- 2台
- 登録日
- 2022-03-21
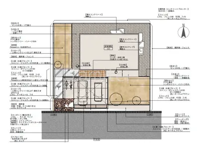
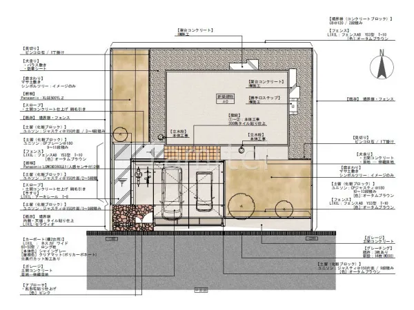
イメージパース・図面







コメント
2台用シャッターゲート LIXIL ワイドシャッターS Fタイプを設置し、重厚感と防犯性を兼ね備えた安心の駐車スペースを実現しました。 門まわりには親子開き門扉 LIXIL 木製調AA TS1型を設置し、温かみのあるデザインと使いやすさを両立しました。 また、細割タイル LIXIL セラヴィオSを使用したタイル門柱を配置し、上質な雰囲気をプラスします。 アプローチにはピンクの乱形石を敷き、華やかで柔らかな雰囲気を添えました。 敷地境界には目隠しフェンス LIXIL AB YS3型で囲み、プライバシーをしっかりと確保します。







