黒い乱形石が重厚感のある新築シンプル セミクローズ外構
プラン内容 No.3164
※データは見積当時のものです
- 見積参考価格
- 446 万円
- 工事面積
- 93m 2
- 工事種別
- 新築外構
- 地形
- 変形
- 方位
- 西
- 車の台数
- 2台
- 登録日
- 2022-03-22
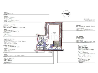
イメージパース・図面








コメント
黒い乱形石を敷いたアプローチと、門柱には大判タイル タカショー セラウォールを使用したタイル門柱を組み合わせることで、重厚感と高級感兼ね揃えたモダンな雰囲気をプラスしました。 駐車スペースには1台用カーポート LIXIL ネスカFを設置し、雨や紫外線から車を保護します。 また、玄関階段に手すり LIXIL アーキレールを備え、安全性と快適性を確保しました。 お庭スペースにはタイルデッキとテラス屋根 三協アルミ セパーネを組み合わせ、屋外で過ごす時間を快適にする憩いの場に仕上げました。








