緑豊かな天然芝とウッドデッキでくつろぐ新築シンプル オープン外構
プラン内容 No.3144
※データは見積当時のものです
- 見積参考価格
- 726 万円
- 工事面積
- 194m 2
- 工事種別
- 新築外構
- 地形
- 四角
- 方位
- 南西
- 車の台数
- 1台
- 登録日
- 2022-04-15
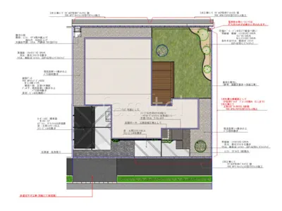
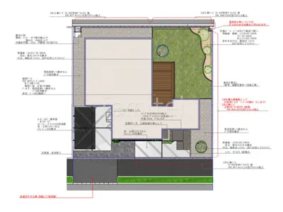
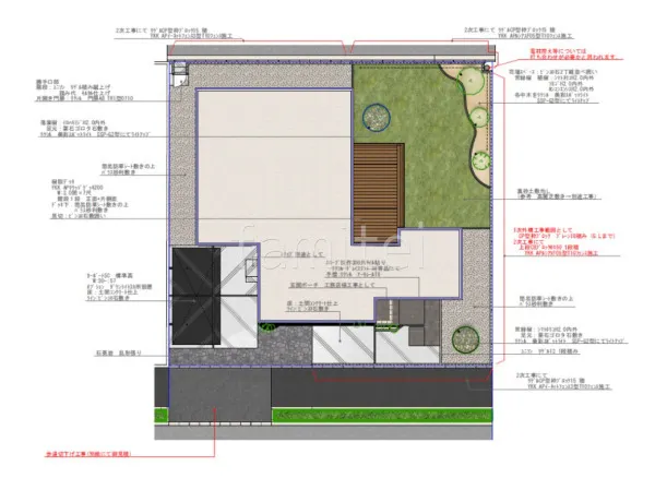
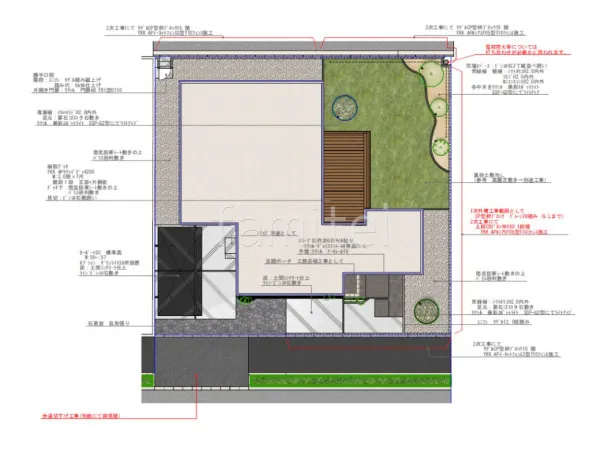
イメージパース・図面











コメント
駐車スペースに1台用カーポート LIXIL カーポートSCを設置し、スタイリッシュなデザインで車を保護します。 アプローチには黒の乱形石を貼り仕上げ、高級感を演出しながら玄関まわりを華やかにしました。 お庭には人工木ウッドデッキ YKKAP リウッドデッキ200を設け、天然芝と組み合わせることで、家族がくつろげるナチュラルな空間を作りました。 さらに、目隠しフェンス YKKAP 木製調ルシアスYL1F型を配置し、プライバシーを守りつつ温かみのある外観に仕上げました。











