乱形石と塗り壁門柱が温かみのある新築ナチュラル オープン外構
プラン内容 No.3141
※データは見積当時のものです
- 見積参考価格
- 214 万円
- 工事面積
- 57m 2
- 工事種別
- 新築外構
- 地形
- 四角
- 方位
- 西
- 車の台数
- 1台
- 登録日
- 2022-04-16
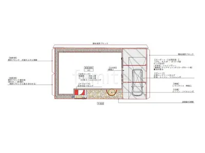
イメージパース・図面







コメント
黄色い乱形石を敷いたアプローチが温かみのある雰囲気を演出し、笠木にレンガを使用した塗り壁門柱を組み合わせることで、重厚感とナチュラルさを兼ね備えたデザインに仕上げました。 アプローチ周辺にはシンボルツリーを配置し、季節ごとの彩りを楽しめるアクセントとなっています。 駐車スペースには1.5台用カーポート LIXIL ネスカFを設置し、車を雨風から保護します。 駐車場後ろには目隠しフェンス F&F マイティウッドデコllを採用し、プライバシーをしっかりと守ります。







