目隠しフェンスと門扉が統一感のある新築ベーシック セミクローズ外構
プラン内容 No.3137
※データは見積当時のものです
- 見積参考価格
- 197 万円
- 工事面積
- 61m 2
- 工事種別
- 新築外構
- 地形
- 角地
- 方位
- 南
- 車の台数
- 2台
- 登録日
- 2022-04-18
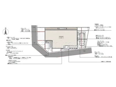
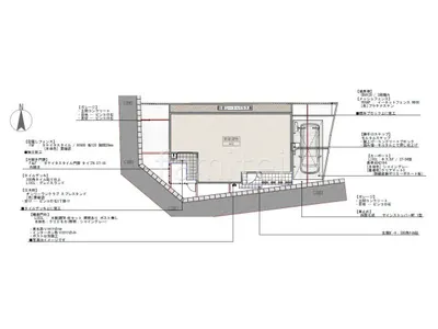
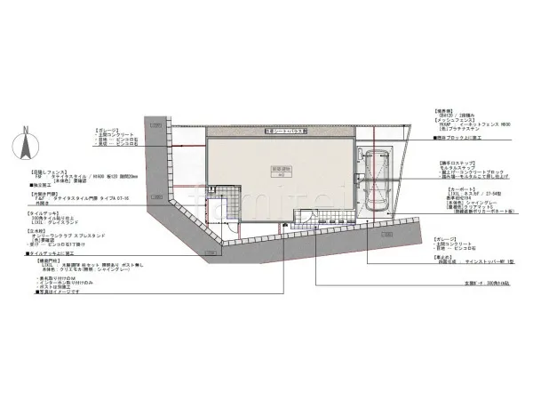
イメージパース・図面








コメント
玄関まわりに機能門柱 LIXIL 木製調FWを設置し、温かみのあるデザインで住まいの印象を柔らかくします。 駐車スペースには1台用カーポート LIXIL ネスカFを採用し、雨や日差しから車をしっかりと守ります。 お庭スペースにはタイルデッキを設け、周囲を目隠しフェンス F&F タテイタスタイルで囲むことで、プライバシーを確保しながら安心して過ごせる屋外空間に仕上げました。 さらに、片開き門扉 F&F タテイタスタイル門扉を設置し、同シリーズで揃えることで、統一感のある仕上がりに。








