木目アイテムが統一感のある新築ハイクラス クローズ外構
プラン内容 No.3128
※データは見積当時のものです
- 見積参考価格
- 607 万円
- 工事面積
- 117m 2
- 工事種別
- 新築外構
- 地形
- 角地
- 方位
- 西
- 車の台数
- 2台
- 登録日
- 2022-05-09
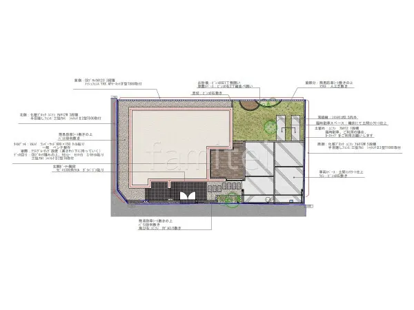
イメージパース・図面









コメント
門まわりに大判タイル タカショー セラレバンテのタイル門塀を設け、重厚感と高級感を兼ね備えたエントランスに仕上げました。 また、両開き門扉 三協アルミ 木製調フレイナSW型を採用し、温かみのある木目デザインで住まいに柔らかな印象を加えています。 駐車スペースには電動跳ね上げゲート 三協アルミ 木製調ラビーネM3N型を設置し、デザイン性と防犯性を向上しました。 境界部分には目隠しフェンス 三協アルミ 木製調シャトレナll 2型を使用し、プライバシーを守りながら外構デザインに統一感をもたらしました。 お庭には木調タイル マルエイ ランバーウッドを使用したタイルデッキを設け、自然な風合いで快適な憩いのスペースを作りました。









