カーポートとサイクルポートでオーソドックスな新築ベーシック オープン外構
プラン内容 No.3081
※データは見積当時のものです
- 見積参考価格
- 723 万円
- 工事面積
- 584m 2
- 工事種別
- 新築外構
- 地形
- 変形
- 方位
- 南
- 登録日
- 2025-06-01
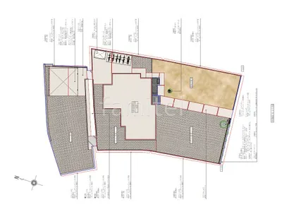
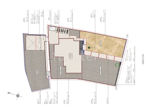
イメージパース・図面








コメント
大判タイル タカショー セラレバンテを使用したタイル門柱を設置し、重厚感と高級感を兼ね備えた門まわりに仕上げました。 門柱付近にシンボルツリーを植えることで、自然の彩りを添えました。 また、サイクルポートとカーポート YKKAP エフルージュFIRSTを設置することで、車と自転車を雨や日差しから守ります。 さらに、物置 ヨドコウ エルモ LMD-2215を配置し、日常の収納力を高めることで暮らしやすさを向上しました。








