タイルデッキと人工芝でメンテナンスフリーなお庭リフォーム工事
プラン内容 No.3073
※データは見積当時のものです
- 見積参考価格
- 80 万円
- 工事面積
- 28m 2
- 工事種別
- リフォーム外構
- 登録日
- 2025-06-06
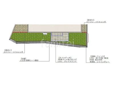
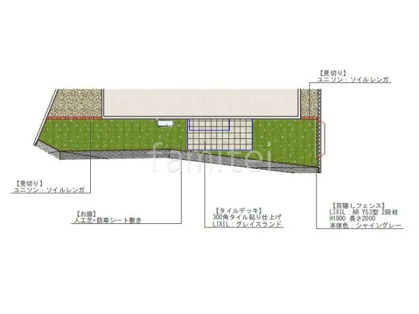
イメージパース・図面




コメント
お庭に耐久性の高い300角タイル LIXIL グレイスランドを使用したタイルデッキを設けることで、屋外でも快適に過ごせるくつろぎの空間を作りました。 周囲には人工芝を敷き、年間を通して美しい緑を楽しめるメンテナンスフリーなお庭に仕上げました。 さらに、多段目隠しフェンス LIXIL AB YS3型を設置し、周囲からの視線を遮ることでプライバシーを確保しました。




