タイルを使用したアプローチと門柱がモダンな新築シンプル セミクローズ外構
プラン内容 No.3052
※データは見積当時のものです
- 見積参考価格
- 271 万円
- 工事面積
- 106m 2
- 工事種別
- 新築外構
- 地形
- 四角
- 方位
- 南
- 車の台数
- 3台以上
- 登録日
- 2025-06-21
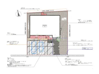
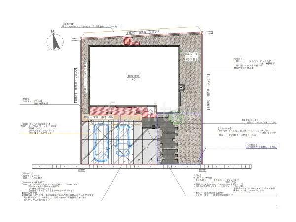
イメージパース・図面






コメント
玄関まわりに大判タイル タカショー セラレバンテを貼り仕上げたタイル門柱を設け、重厚感と高級感をプラスしました。 アプローチには大判タイル ユニソン ナプラを採用し、モダンな印象を与えます。 駐車スペースには2台用カーポート YKKAP エフルージュFIRSTを設置し、雨や紫外線から車をしっかりと守ります。 また、目隠しフェンス LIXIL AB YS2型 2段柱を設置することで、外部からの視線を遮りつつスタイリッシュな外観に仕上げました。






