塗り壁門柱とロックガーデンが彩りのある新築シンプル セミクローズ外構
プラン内容 No.3041
※データは見積当時のものです
- 見積参考価格
- 284 万円
- 工事面積
- 87m 2
- 工事種別
- 新築外構
- 地形
- 角地
- 方位
- 北西
- 車の台数
- 1台
- 登録日
- 2025-05-02
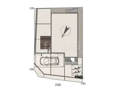
イメージパース・図面







コメント
玄関まわりに塗り壁門柱とロックガーデンを設け、自然石の風合いで立体感と彩りを添えつつ、重厚感のあるエントランスに仕上げました。 また、1台用カーポートとサイクルポート YKKAP エフルージュFIRSTをそれぞれ設置することで、雨風から自転車や車を守ります。 お庭スペースには目隠しフェンス F&F ニコボードを設置してプライバシーを確保し、ウッドデッキ LIXIL 樹ら楽ステージを組み合わせることで、家族の憩いの場として快適な屋外空間を作りました。







