タイルアプローチとカーポートがモダンな新築シンプル オープン外構
プラン内容 No.3027
※データは見積当時のものです
- 見積参考価格
- 142 万円
- 工事面積
- 78m 2
- 工事種別
- 新築外構
- 地形
- 四角
- 方位
- 南
- 登録日
- 2025-05-12
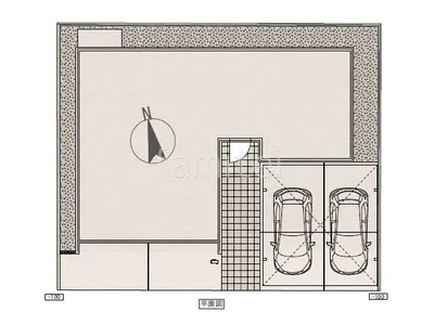
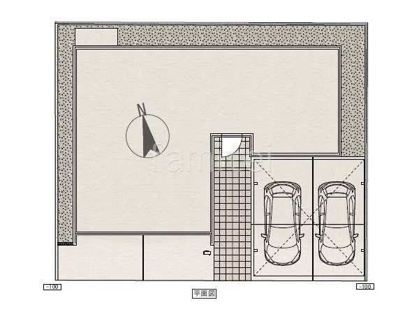
イメージパース・図面





コメント
駐車スペースには2台用カーポート YKKAP エフルージュFIRSTを設置し、雨や日差しから車をしっかりと守ります。 玄関までのアプローチには、300角タイル LIXIL パセオを貼り仕上げ、モダンな印象をプラスします。 また、門まわりにシンプルなデザインの機能門柱 LIXIL アクシィ1型を設置することで、利便性の高いエントランスに仕上げました。





