引戸門扉で防犯性と機能性を高めたお庭リフォーム
プラン内容 No.3020
※データは見積当時のものです
- 見積参考価格
- 121 万円
- 工事種別
- リフォーム外構
- 登録日
- 2025-05-17
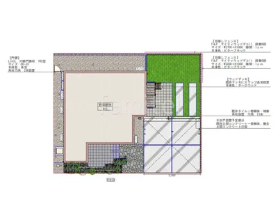
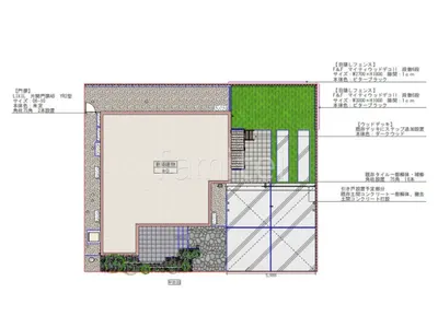
イメージパース・図面









コメント
駐車スペースとお庭の間に、引き戸門扉 LIXIL エススライドC型と角柱を設置し、スムーズな動線を確保しつつ防犯性を高めました。 お庭には目隠しフェンス F&F マイティウッドデコllを設置することで、プライバシーを守りながらナチュラルな雰囲気を演出しました。 また、既存のウッドデッキにデッキステップを取り付け、昇降のしやすさと安全性を向上させました。









