梁延長カーポートと浮遊階段がスタイリッシュな新築ハイクラス オープン外構
プラン内容 No.3007
※データは見積当時のものです
- 見積参考価格
- 528 万円
- 工事面積
- 127m 2
- 工事種別
- 新築外構
- 地形
- 角地
- 方位
- 南東
- 車の台数
- 3台以上
- 登録日
- 2025-05-23
イメージパース・図面







コメント
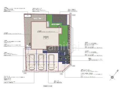
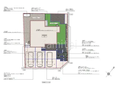
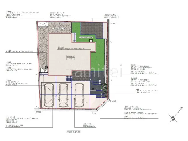
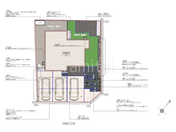
駐車スペースにスタイリッシュなデザインの2台用カーポート LIXIL カーポートSCを設置し、梁延長タイプを採用することで、玄関までのスムーズな動線を確保しました。 門まわりには大判タイル タカショー セラウォールを使用したタイル門柱を設置し、上品な印象に仕上げました。 玄関階段は浮遊階段加工を施し、手すり LIXIL アーキレールを組み合わせ、安全性とデザイン性を両立しました。 お庭には人工芝を敷き、お手入れが簡単で一年中緑を楽しめる空間を作りました。







