プラスGとカーポートが高級感のある新築シンプル オープン外構
プラン内容 No.2987
※データは見積当時のものです
- 見積参考価格
- 394 万円
- 工事面積
- 84m 2
- 工事種別
- 新築外構
- 地形
- 四角
- 方位
- 南西
- 登録日
- 2025-04-07
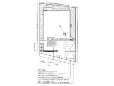
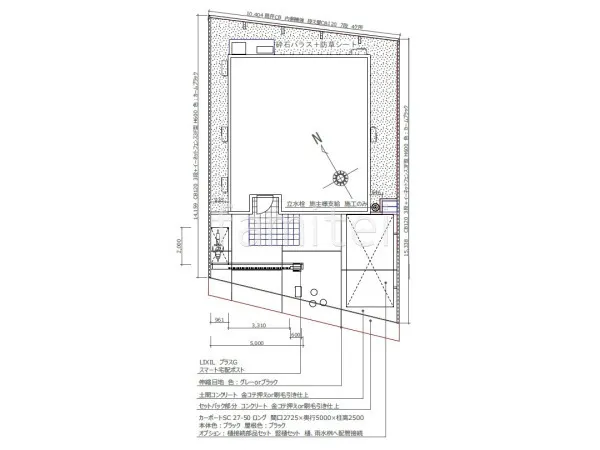
イメージパース・図面




コメント
駐車スペースに1台用カーポート LIXIL カーポートSCを設置し、直線的でスタイリッシュなデザインで車を雨や紫外線から保護します。 門まわりにはLIXIL プラスGのフレームとスクリーンを組み合わせた門柱を設置し、エントランスに高級感を与えつつ、程よい目隠し効果でプライバシーにも配慮しています。




