カーポートと機能門柱でスタンダードな新築ベーシック オープン外構
プラン内容 No.2969
※データは見積当時のものです
- 見積参考価格
- 219 万円
- 工事面積
- 136m 2
- 工事種別
- 新築外構
- 地形
- 角地
- 方位
- 西
- 車の台数
- 2台
- 登録日
- 2025-04-26
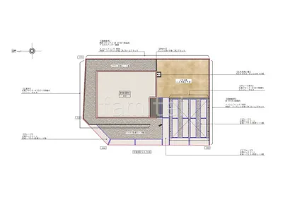
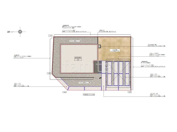
イメージパース・図面







コメント
玄関まわりに機能門柱 YKKAP 木製調ルシアスポストユニットHD02型を設置し、ナチュラルで温かみのある印象をプラスしました。 駐車スペースには2台用カーポート YKKAP アリュースを設置し、車を雨風からしっかりと保護します。 土間のコンクリートは轍デザインを施し、コストを抑えつつ安定した足場で駐車をすることができるようにしました。







