シャッターと門扉で防犯性の高い新築クローズ ハイクラス外構
プラン内容 No.2968
※データは見積当時のものです
- 見積参考価格
- 636 万円
- 工事面積
- 155m 2
- 工事種別
- 新築外構
- 地形
- 四角
- 方位
- 西
- 車の台数
- 2台
- 登録日
- 2025-04-26
イメージパース・図面






コメント
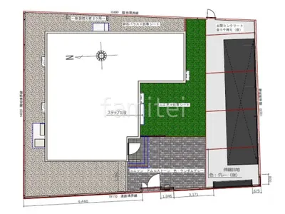
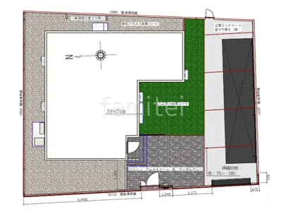
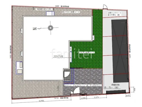
化粧ブロック ユニソン アルタを使用した門柱を設置し、重厚感のあるエントランスに仕上げました。 また、親子開き門扉 YKKAP 木製調ルシアスTM3型と目隠しフェンス YKKAP 木製調ルシアスH13型を設置することで、自然と調和をとりつつ、プライバシーを守ります。 車庫まわりにはシャッターゲート LIXIL シャッターS Fタイプと縦2台用カーポート YKKAP ネスカFを新設し、防犯性を高めつつ車を安全に保護します。 アプローチには舗装材 ユニソン アルムストーンを敷き、モダンな印象をプラスしました。






