大きなタイル門塀と浮遊階段が高級感のある新築シンプル セミクローズ外構
プラン内容 No.2964
※データは見積当時のものです
- 見積参考価格
- 456 万円
- 工事面積
- 146m 2
- 工事種別
- リフォーム外構
- 地形
- 四角
- 方位
- 南西
- 車の台数
- 2台
- 登録日
- 2025-01-26
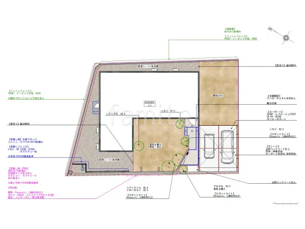
イメージパース・図面






コメント
大判タイル タカショー セラウォールを使用した大きなタイル門塀を新設することで、重厚感と高級感を兼ね備えたエントランスに仕上げました。 駐車スペースには2台用カーポート YKKAP エフルージュFIRSTを設置し、雨や日差しから車をしっかりと守ります。 玄関階段は浮遊階段加工を施し、高級感をプラスしました。 お庭には季節の移ろいを感じられるシンボルツリーを植栽し、自然の彩りを加えました。






