お庭の人工芝が美しい新築ベーシック オープン外構
プラン内容 No.2899
※データは見積当時のものです
- 見積参考価格
- 191 万円
- 工事面積
- 103m 2
- 工事種別
- 新築外構
- 地形
- 旗竿地
- 方位
- 東
- 車の台数
- 2台
- 登録日
- 2025-03-10
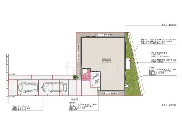
イメージパース・図面








コメント
駐車スペースに縦2台用カーポート YKKAP エフルージュFIRSTを設置し、車を雨や風からしっかりと保護します。 門柱は大判タイル タカショー セラレバンテを採用し、重厚感と高級感を兼ね揃えたエントランスに仕上げました。 また、門柱前にはロックガーデンを配置し、季節の彩りと立体感を添えるアクセントに。 お庭にはお手入れが簡単な人工芝を敷き、一年中美しい緑で家族や友人と快適に過ごせる空間を作りました。








