人工芝とウッドデッキでのんびりくつろぐ新築ナチュラル オープン外構
プラン内容 No.2877
※データは見積当時のものです
- 見積参考価格
- 192 万円
- 工事面積
- 50m 2
- 工事種別
- 新築外構
- 地形
- 四角
- 方位
- 南
- 車の台数
- 1台
- 登録日
- 2025-03-22
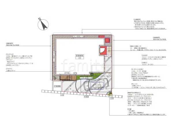
イメージパース・図面







コメント
お庭スペースにくつろぎの空間としてウッドデッキ LIXIL 樹ら楽ステージを設置し、人工芝を敷くことで、緑豊かで家族とのんびり過ごせるスペースを確保しました。 駐車スペースには1台用カーポート LIXIL フーゴF逆勾配を設置し、雨水が家側に流れにくい設計で車を保護します。 玄関まわりには機能門柱 YKKAP ルシアスポストユニット WD01型を設置し、木調の温もりを感じるエントランスに仕上げました。







