角柱とプラスGを組み合わせてモダンな新築シンプル オープン外構
プラン内容 No.2835
※データは見積当時のものです
- 見積参考価格
- 546 万円
- 工事面積
- 107m 2
- 工事種別
- 新築外構
- 地形
- 四角
- 方位
- 南
- 車の台数
- 2台
- 登録日
- 2025-02-24
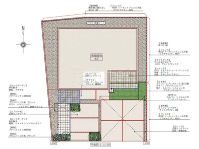
イメージパース・図面






コメント
浮遊階段加工を施した玄関階段にプラスGのGウォールとポイントルーフを組み合わせることで、モダンで立体的なデザインに仕上げました。 門柱は角柱を使用することで、シャープな印象を与えます。 駐車スペースには2台用カーポートの LIXIL カーポートSCを設置し、スタイリッシュなデザインで車を雨風から保護します。 また、駐車場とお庭の間に目隠しフェンス F&F マイティウッドデコllを使用することで、プライバシーを確保しつつ、木目で温かみのある雰囲気をプラスしました。 お庭にはタイルデッキと日除け LIXIL スタイルシェードを設置し、快適なお庭空間を作りました。






