タイルアプローチと塗り壁門柱がモダンな新築シンプル セミクローズ外構
プラン内容 No.2812
※データは見積当時のものです
- 見積参考価格
- 153 万円
- 工事面積
- 27m 2
- 工事種別
- 新築外構
- 地形
- 四角
- 登録日
- 2025-01-12
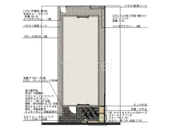
イメージパース・図面








コメント
玄関先に白の塗り壁門柱を設置し、落ち着きのある空間を演出します。 門柱横には目隠しフェンス F&F タテイタスタイル120を採用し、プライバシーを確保しつつモダンな印象をプラスしました。 大判タイル セラレバンテを使用したタイルアプローチはモダンなデザインで高級感を加えます。 さらに、境界には目隠しフェンス LIXIL AB YS3型を使用して、防犯性を高めました。








