木製調カーポートがスタイリッシュな新築ハイクラス セミクローズ外構
プラン内容 No.2791
※データは見積当時のものです
- 見積参考価格
- 502 万円
- 工事面積
- 158m 2
- 工事種別
- 新築外構
- 地形
- 四角
- 方位
- 南
- 車の台数
- 3台以上
- 登録日
- 2024-12-06
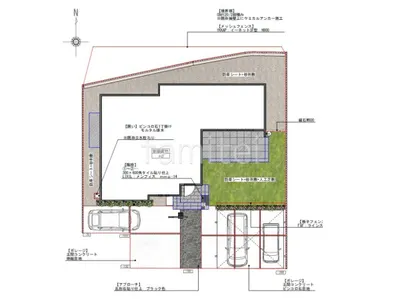
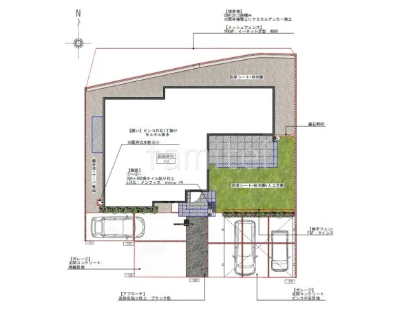
イメージパース・図面






コメント
駐車スペースに2台用カーポート LIXIL 木製調カーポートSCを設置することで、木調で自然の温もりを感じさせながら車を雨風から保護します。 玄関先に大判タイル LIXIL ストーンタイプコレクションを使用したタイル門柱を新設し、高級感を加えました。 アプローチは黒い乱形石を採用し、エレガントで印象的なデザインに仕上げました。 お庭には、手入れが簡単な人工芝を敷き、目隠しフェンス F&F ラインスタイルMを設置してプライバシーをしっかりと確保しました。






