大きなシャッターガレージで車を守る新築ハイクラス セミクローズ外構
プラン内容 No.2749
※データは見積当時のものです
- 見積参考価格
- 743 万円
- 工事面積
- 320m 2
- 工事種別
- 新築外構
- 地形
- 四角
- 方位
- 北
- 車の台数
- 3台以上
- 登録日
- 2024-04-07
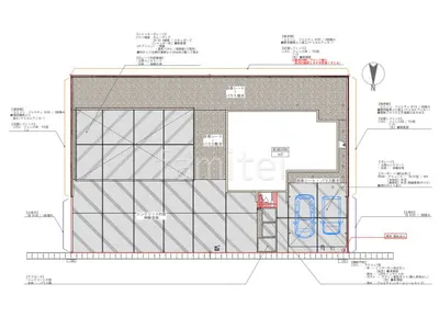
イメージパース・図面







コメント
駐車スペースにシャッターガレージ イナバ物置 ガレーディア 4連棟を設置し、複数台の車を風雨や盗難から守る安心感をプラスしました。 境界周りには目隠しフェンス LIXIL AB YS3型を配置し、プライバシーをしっかりと確保しました。 さらに、建物横には2台用カーポート YKKAP アリュースを設置し、実用性を向上しました。 また、門柱は利便性の高い機能門柱 LIXIL アクシィ1型を採用しました。







