カーポートとスロープで利便性の高い車庫まわりリフォーム
プラン内容 No.2689
※データは見積当時のものです
- 見積参考価格
- 227 万円
- 工事種別
- リフォーム外構
- 登録日
- 2024-11-23
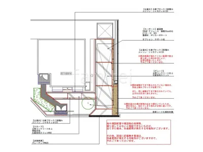
イメージパース・図面




コメント
駐車スペースを土間コンクリートで仕上げ、耐久性をアップしました。 また、縦2台用カーポート YKKAP アリュースを設置して車を雨風から保護します。 さらに、駐車場から住居へのアプローチにはスロープを設け、スムーズな動線を確保しています。
※データは見積当時のものです




駐車スペースを土間コンクリートで仕上げ、耐久性をアップしました。 また、縦2台用カーポート YKKAP アリュースを設置して車を雨風から保護します。 さらに、駐車場から住居へのアプローチにはスロープを設け、スムーズな動線を確保しています。