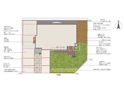
乱形石のアプローチが綺麗な新築ナチュラル オープン外構
プラン内容 No.2686
※データは見積当時のものです
- 見積参考価格
- 388 万円
- 工事面積
- 188m 2
- 工事種別
- 新築外構
- 地形
- 角地
- 方位
- 南
- 車の台数
- 2台
- 登録日
- 2024-11-23
イメージパース・図面







コメント
乱形石を使ったアプローチは、ナチュラルな雰囲気で、エントランスを彩ります。 門柱は大判タイル タカショー セラマイカを採用し、モダンなデザインに仕上げました。 駐車スペースには1.5台用カーポート LIXIL ネスカFを設置し、雨や日差しから車を守るります。 お庭にはメンテナンスが簡単な人工芝を敷き、ウッドデッキ LIXIL 樹ら楽ステージを設置し、リラックスできる快適な屋外空間を作りました。







