浮遊階段と広いタイルデッキが魅力的な新築ハイクラス オープン外構
プラン内容 No.2614
※データは見積当時のものです
- 見積参考価格
- 506 万円
- 工事面積
- 87m 2
- 工事種別
- 新築外構
- 地形
- 四角
- 方位
- 南
- 車の台数
- 2台
- 登録日
- 2024-09-14
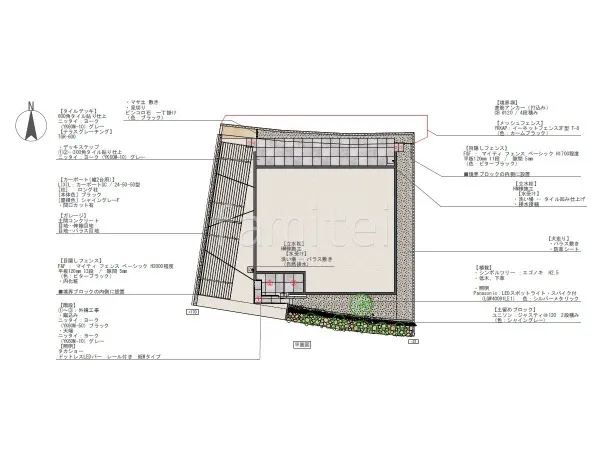
イメージパース・図面







コメント
玄関階段は浮遊階段加工を施し、モダンな印象を与え、またラインライトを取り付けることで夜間も美しい印象を与えます。 門柱は大判タイル LIXIL アヴァンティを使用し、存在感のあるエントランスに仕上げました。 駐車場には縦2台用のカーポート LIXIL カーポートSCスタイリッシュなデザインで車をしっかりと保護します。 隣地境界側には目隠しフェンス F&F マイティウッドデコllを設置し、プライバシーを確保しています。 お庭スペースには大判タイル ニッタイ ヨークを使ったタイルデッキを設置し、広々とした空間でリラックスや交流を楽しむことができる場所にしました。







