乱形石と木調フェンスで新築ナチュラル セミクローズ外構
プラン内容 No.2585
※データは見積当時のものです
- 見積参考価格
- 283 万円
- 工事面積
- 98m 2
- 工事種別
- 新築外構
- 地形
- 角地
- 方位
- 南
- 車の台数
- 2台
- 登録日
- 2024-08-05
イメージパース・図面






コメント
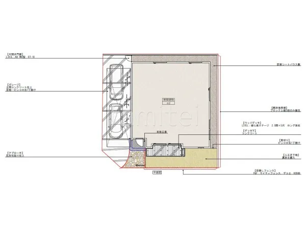
アプローチは乱形石を使用し、エントランスをナチュラルな雰囲気に仕上げました。 駐車場には縦2台用カーポート YKKAP アリュースZ 風38を設置し、車を雨や紫外線から守ります。 また、お庭にウッドデッキ LIXIL 樹ら楽ステージを設置し、快適にくつろげる空間を作りました。 さらに、お庭周りを目隠しフェンス F&F マイティウッドデコllを設置し、プライバシーを守りながら、木目の温かみでお庭空間に落ち着きを与えます。






