木目フェンスで温かみのある新築ベーシック セミクローズ外構
プラン内容 No.2572
※データは見積当時のものです
- 見積参考価格
- 244 万円
- 工事面積
- 123m 2
- 工事種別
- 新築外構
- 地形
- 変形
- 方位
- 南
- 車の台数
- 3台以上
- 登録日
- 2024-08-19
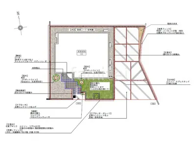
イメージパース・図面







コメント
エントランスには機能門柱 LIXIL FSを設置し、スマートなデザインでスタイリッシュな印象を加えました。 境界には目隠しフェンス LIXIL 木製調AB YS3-K型を設置し、木目で温かみのある雰囲気で、プライバシーをしっかり守ります。 お庭スペースには人工芝を敷き、お手入れが簡単で一年中緑を楽しめる空間にしました。







