カーポートを2つ組み合わせた新築シンプル オープン外構
プラン内容 No.2545
※データは見積当時のものです
- 見積参考価格
- 332 万円
- 工事面積
- 82m 2
- 工事種別
- 新築外構
- 地形
- 四角
- 方位
- 南
- 登録日
- 2024-07-13
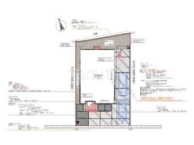
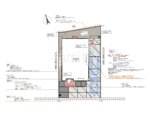
イメージパース・図面






コメント
奥行きのある駐車スペースに縦2台用カーポートと1台用カーポート YKKAP アリュースを縦に組み合わせて配置し、車の収納スペースを確保しました。 門柱は宅配ボックス付き門柱 Panasonic アーキフレームFを設置し、デザイン性と機能性の高いエントランスにしました。 アプローチには洗出し仕上げを採用し、滑りにくく安全に歩行ができるようにしました。 掃き出し窓の前には目隠しフェンス 三協アルミ エルファードを設置してプライバシーしっかりと守ります。






