モダンなカーポートとタイルで高級感のある新築シンプル オープン外構
プラン内容 No.2538
※データは見積当時のものです
- 見積参考価格
- 265 万円
- 工事面積
- 65m 2
- 工事種別
- 新築外構
- 地形
- 変形
- 方位
- 南
- 車の台数
- 2台
- 登録日
- 2024-07-20
イメージパース・図面






コメント
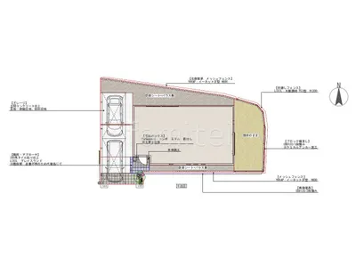
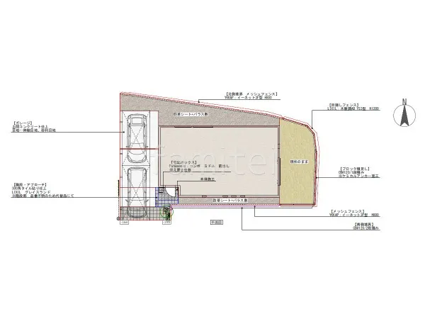
駐車場に縦2台用カーポート LIXIL カーポートSCを設置し、高級感のある駐車スペースを作りました。 駐車場の手前側にはタイル LIXIL グレイスランドを貼り仕上げてタイヤ痕を目立ちにくくしています。 また、玄関先には大判タイル タカショー セラレバンテを使用したタイル門柱を設置し、モダンな印象をプラスしました。 お庭周りの境界には目隠しフェンス LIXIL 木製調AB YS3型を設置し、プライバシーを守るだけでなく、木調で温かみのあるお庭空間にしました。






