木調フェンスと乱形石で自然と調和した新築シンプル クローズ外構
プラン内容 No.2511
※データは見積当時のものです
- 見積参考価格
- 295 万円
- 工事面積
- 133m 2
- 工事種別
- 新築外構
- 地形
- 四角
- 方位
- 南西
- 登録日
- 2024-06-07
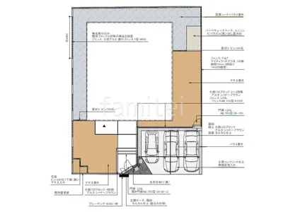
イメージパース・図面




コメント
プライバシーを確保するために駐車場後ろの範囲に目隠しフェンス LIXIL 木製調AB YS3型を設置しました。 門まわりには親子開き門扉 LIXIL AB TR3型と大判タイル タカショー セラレバンテを用いた門柱を設置し、モダンなデザインで高級感を与えます。 アプローチには黒の乱形石を採用し、自然と調和した外構プランに仕上げました。




