カーポートと人工芝の新築ベーシック オープン外構
プラン内容 No.2476
※データは見積当時のものです
- 見積参考価格
- 166 万円
- 工事面積
- 86m 2
- 工事種別
- 新築外構
- 地形
- 四角
- 方位
- 南
- 車の台数
- 2台
- 登録日
- 2024-05-12
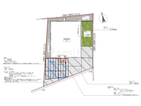
イメージパース・図面






コメント
駐車場には敷地にあわせて前枠をカット加工した2台用カーポート YKKAP エフルージュFIRSTを設置し、最大限に駐車スペースを確保し、車を保管できるようにしました。 玄関まわりには機能門柱 LIXIL アクシィ1型を設置し、コンパクトながらも利便性の高いエントランスに仕上げています。 お庭には人工芝を敷き、メンテナンスフリーで自然な緑を楽しむことができるようにしました。






