カーポート付きでスタンダードな新築ベーシック オープン外構
プラン内容 No.2440
※データは見積当時のものです
- 見積参考価格
- 344 万円
- 工事面積
- 120m 2
- 工事種別
- 新築外構
- 地形
- 変形
- 方位
- 北
- 車の台数
- 3台以上
- 登録日
- 2024-04-20
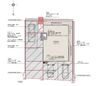
イメージパース・図面








コメント
機能門柱はPanasonic テセラフレーム。宅配ボックス付きで、ご不在でも荷物を受け取る事が出来ます。駐車場スペースにはカーポート 三協アルミ セルフィ 縦1.5台用を設置。雨の日でもゆっくりと焦らず車に乗り降りする事が出来、お子様連れでも安心です。土間コンクリートを打設することで、歩きやすく、雑草の心配もありません。








