旗竿地の縦長地形を活かした駐車場のある新築シンプル オープン外構
プラン内容 No.2414
※データは見積当時のものです
- 見積参考価格
- 360 万円
- 工事面積
- 110m 2
- 工事種別
- 新築外構
- 地形
- 旗竿地
- 方位
- 東
- 車の台数
- 2台
- 登録日
- 2024-03-17
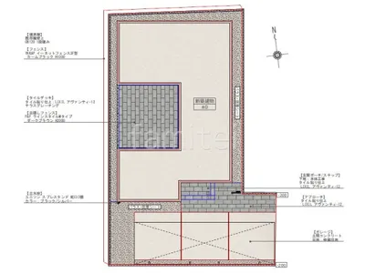
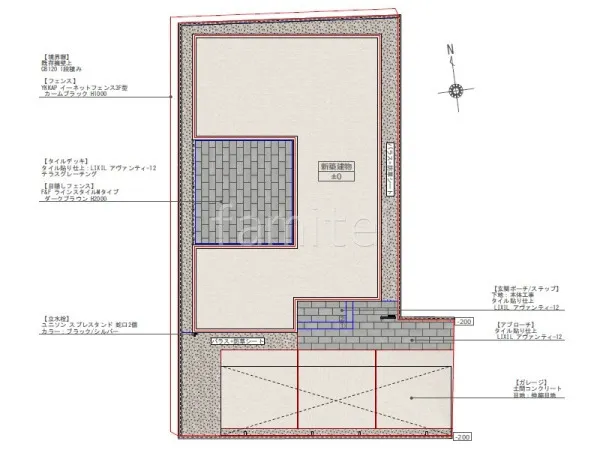
イメージパース・図面








コメント
駐車場は旗竿地の地形を利用して縦2台用カーポート LIXIL ネスカFを採用しました。 アプローチと玄関ステップは大判タイル LIXIL アヴァンティを貼ってスタイリッシュな印象に仕上げました。 機能門柱は直線の多いオンリーワンクラブ シンプルフレーム タイプCを設置してエントランスの高級感もプラスします。 お庭部分には大きなタイルデッキと目隠しフェンス F&F ラインスタイルMタイプを設置してプライバシーを確保しつつ、洗練されたデザインでお庭を仕上げました。








