カーポートで車庫まわりリフォーム

プラン内容 No.2325

※データは見積当時のものです

見積参考価格
157 万円
工事種別
リフォーム外構
車の台数
2台
登録日
2023-12-12

イメージパース・図面

コメント

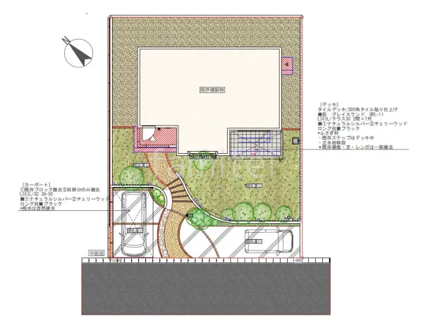
駐車場スペースにLIXIL 木製調カーポートSC 1台用を設置しました。木目調のアルミ形材屋根が美しいだけでなく、太陽光や雨から車をしっかり守ります。

このプランの分類