カーポートが便利な新築ベーシック オープン外構
プラン内容 No.2324
※データは見積当時のものです
- 見積参考価格
- 229 万円
- 工事面積
- 94m 2
- 工事種別
- 新築外構
- 地形
- 変形
- 方位
- 北
- 車の台数
- 2台
- 登録日
- 2023-12-12
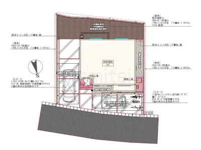
イメージパース・図面








コメント
機能門柱はYKKAP シンプレオポストユニット1型。表札、ポスト、インターホンといった玄関機能がまとまっており、シンプルで使いやすい機能門柱です。駐車場スペースにはカーポート LIXIL ネスカRと三協アルミ ニューマイリッシュ逆勾配を設置。場所ごとに適したカーポートを置くことで生活が快適になります。








