凹凸型の土地にスタンダードな新築ベーシック オープン外構
プラン内容 No.2292
※データは見積当時のものです
- 見積参考価格
- 162 万円
- 工事面積
- 70m 2
- 工事種別
- 新築外構
- 地形
- 変形
- 方位
- 西
- 車の台数
- 2台
- 登録日
- 2023-11-24
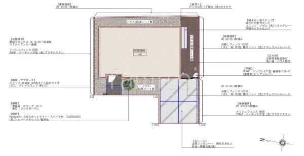
イメージパース・図面








コメント
機能門柱はYKKAP ポスティモαIII D型を採用。豊富なカラーバリエーションで門まわりを彩ります。また、シンボルツリー オリーブが玄関を優しい印象に。足元にはロックガーデン 栗石を敷くことで自然な風合いが高まります。駐車場スペースは土間コンクリート内にし、人が歩きやすく車が止めやすい仕上がりです。








