蹴込み階段がスタイリッシュな新築ベーシック オープン外構
プラン内容 No.2203
※データは見積当時のものです
- 見積参考価格
- 279 万円
- 工事面積
- 117m 2
- 工事種別
- 新築外構
- 地形
- 旗竿地
- 方位
- 北西
- 車の台数
- 2台
- 登録日
- 2023-08-16
イメージパース・図面









コメント
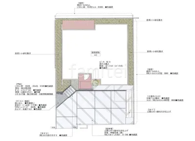
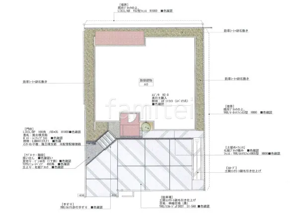
モノクロ色で印象的な玄関アプローチ階段は、化粧ブロックと平板 東洋工業 ニュートペイブで作成しました。YKKAP ルシアス歩行手すりを設置し、安全面にも配慮しています。また、敷地内にスロープを設置することで、自転車などを玄関近くまで上げやすくなっています。









