カーポートとウッドデッキが便利な新築シンプル オープン外構
プラン内容 No.2186
※データは見積当時のものです
- 見積参考価格
- 211 万円
- 工事面積
- 67m 2
- 工事種別
- 新築外構
- 地形
- 変形
- 方位
- 北
- 車の台数
- 2台
- 登録日
- 2023-08-27
イメージパース・図面








コメント
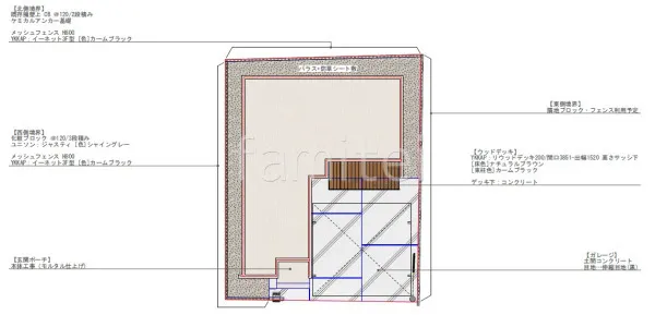
駐車場スペースにはカーポート YKKAP エフルージュFIRST 横2台用を設置し、雨の日でもゆっくり車の乗り降りができるようにしています。掃き出し窓の傍にはウッドデッキ YKKAP リウッドデッキを置き、窓からも外に出やすくなっているほか、憩いのスペースとしてもご利用いただけます。








